Proyectos
Estudio
Noticias
Luafix
Contacto
Todos los proyectos
Residencial
Casa del Bacalao
Casa Sol 110
Viviendas adosadas La Galera
Residencial 2 de Mayo
Viviendas Bodega Plaza
Casa Sol 110
Vivienda Lagos
Casa del Bacalao
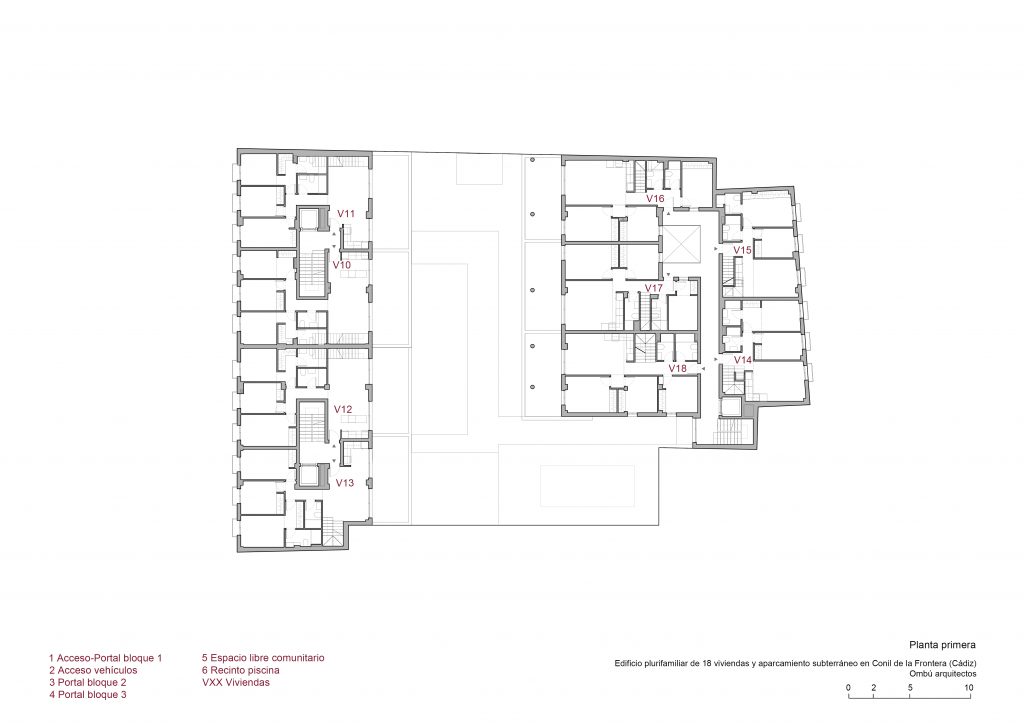
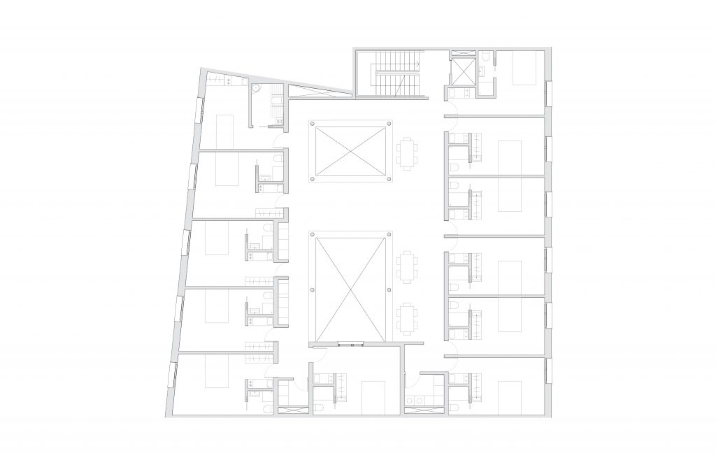
Residencia de estudiantes
CONCURSO Viviendas La Florida
¿Tienes un proyecto a la vista? ¡Cuéntanos tu idea!
¡Comenzamos!
Menú