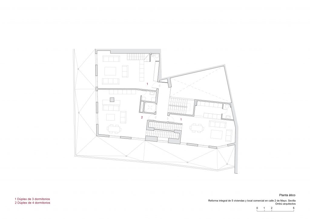
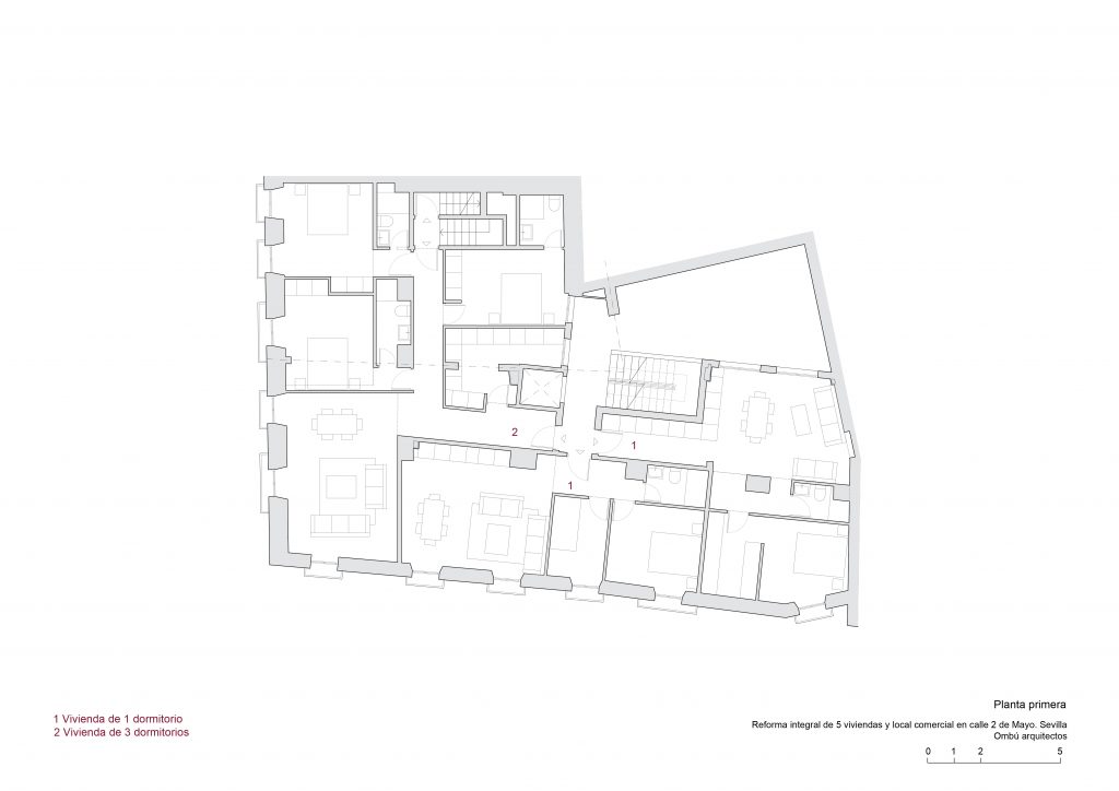
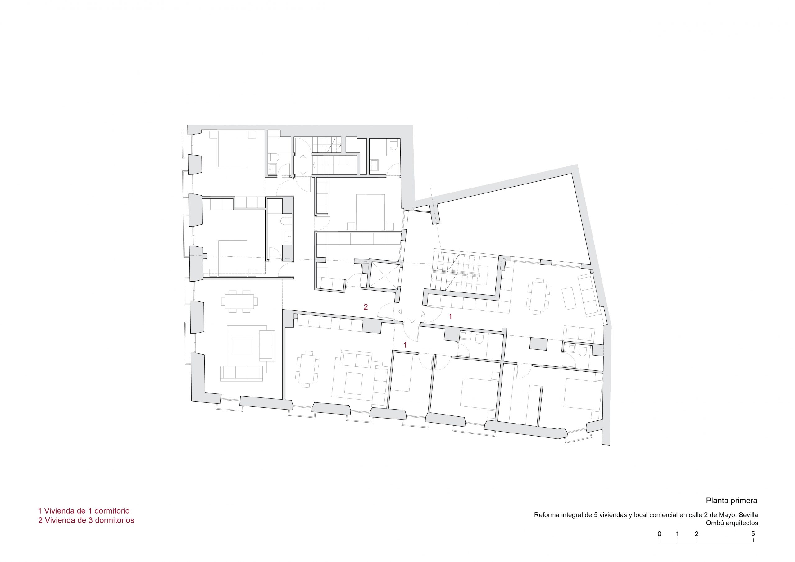
El proyecto consiste en la reforma integral de inmueble para su uso como 5 viviendas unifamiliares y local comercial, partiendo de las premisas históricas, locales y tratando de recuperar el conocimiento de la arquitectura tradicional de la zona y su adaptación al medio físico y al entorno urbano, pero también con la perspectiva de satisfacer las necesidades de un hogar contemporáneo y una forma de habitar que ha evolucionado sensiblemente desde la época en que se desarrolló el inmueble que se pretende rehabilitar.
Para el estudio volumétrico y de edificabilidad partimos de los datos relativos a las fichas de catalogación de ambas parcelas. Se determina que la volumetría resultante del edificio se calcula en base al estudio de ambas parcelas por separado, no realizándose la unión de las mismas, es decir manteniendo la segregación del parcelario.
Se mantiene la posición original de accesos y para ambas parcelas. Con la intención de mejorar la accesibilidad, se incluye una escalera y un ascensor accesible que dará servicio a ambas parcelas. La parcela de la calle Dos de Mayo mantiene su caja de escaleras y acceso original, además del descrito anteriormente. Con idea de mantener los elementos característicos de ambas edificaciones se propone la conservación de la alineación de los muros de carga interiores existentes.




