Ombú Arquitectos ha sido premiado con el Premio COAS Jóvenes Arquitectos 2023, por el proyecto de rehabilitación integral de una vivienda unifamiliar en Sevilla.
La gala de entrega de los V Premios COAS Arquitectura & Sociedad 2023, retrata la calidad profesional del colectivo y promueven la arquitectura como herramienta de mejora de la vida de las personas.
En esta edición, han premiado a un total de 23 trabajos arquitectónicos en 7 categorías diferentes. Además 9 premios especiales, con un matiz social y 2 premios a la excelencia en la trayectoria de arquitectos que han sido maestros para la profesión.
Rosario Chaza Chimeno, directora de la Escuela Técnica Superior de Ingeniería de Edificación de Sevilla fue la encargada de entregar el premio en la categoría Jóvenes Arquitectos a la “Reforma integral de vivienda unifamiliar en calle Sol 110 (Sevilla)”, donde Ombú Arquitectos fue premiado.
El estado inicial del edificio se encontraba en deficiente estado de conservación. Por tanto, para Ombú Arquitectos toma como punto de partida la intervención de la conservación de la estructura tipológica y patrimonial del edificio existente y la puesta en valor del mismo.
Es en este contexto, con varios cambios de propiedad durante el proceso, una adecuada gestión junto con la búsqueda documental, contribuyen a enriquecer la propuesta de recuperación del estado patrimonial original del inmueble.
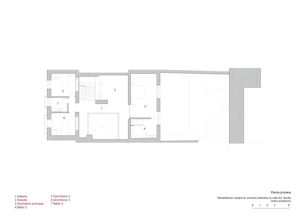
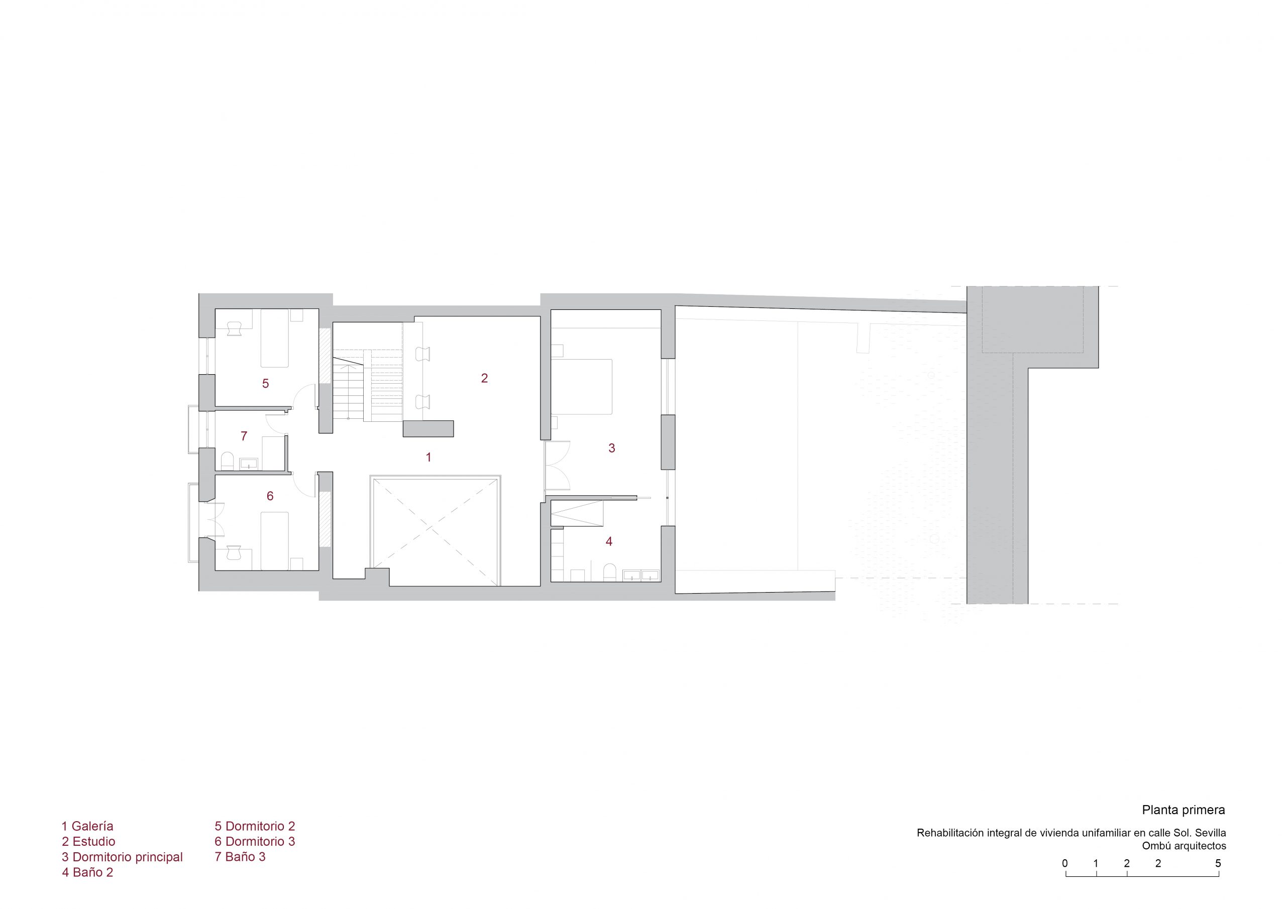
Una vivienda unifamiliar entre medianeras, situado en el casco histórico de Sevilla que posee la particularidad de que uno de sus linderos, el patio sur, colinda con el lienzo de la muralla almohade. La tipología de casa patio en dos plantas se preserva volcando la vivienda tanto al interior como al patio que conforma con la muralla. De este modo se genera una sucesión de espacios abiertos, un gradiente de los más públicos a los más privados, permitiendo tanto un soleamiento óptimo como la ventilación natural y la presencia constante del patrimonio.
La popularmente conocida como “casa del tiro” queda finalmente recuperada e integrada en la vida de la sociedad sevillana.
El proyecto ha sido definido como: “Obra de una sorprendente madurez, que interpreta la tipología de la casa-patio burguesa sevillana desde claves y materialidades contemporáneas sin alardes, a través de una coherencia en el uso de las soluciones estructurales y espaciales, poniendo en valor la preexistencia de la muralla histórica de la ciudad en el bondadoso jardín de la vivienda.“




