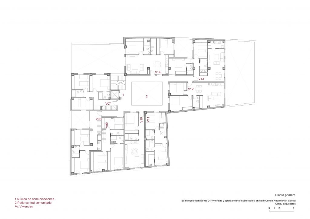
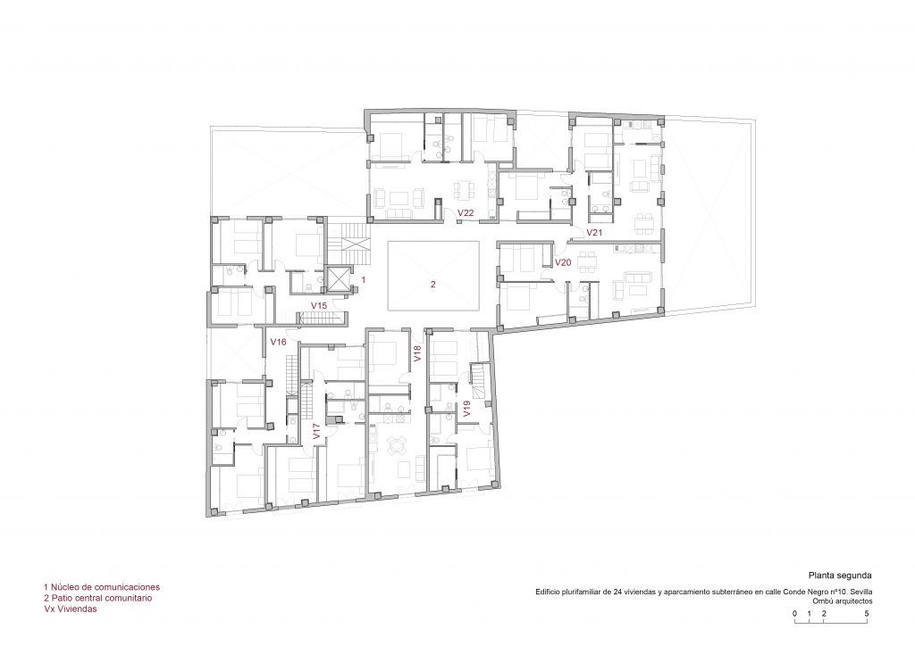
La parcela donde se encarga el proyecto de edificio de viviendas pertenece al Conjunto Histórico de Sevilla, concretamente al Sector 4, Santa Catalina-Santiago. La parcela posee una sola fachada a la calle Conde Negro de Sevilla, quedando el resto de la parcela en el interior de la manzana en la que se inserta, dicha fachada con orientación este mira a una calle de reducidas dimensiones característica del casco histórico.
El acceso al edificio se produce por esta calle, desde la que se accede a un pasaje que comunica con el patio vividero interior, a partir del cual se organizan todas las viviendas y se accede a ellas a través de una galería por planta en torno al mismo. Las 24 viviendas de las que consta el edificio se reparten en cuatro plantas de altura, contando varias de ellas con ático. Con objeto de alcanzar unos niveles adecuados de iluminación y ventilación, las viviendas se agrupan en torno a un total de 5 patios interiores. Bajo rasante, el edificio cuenta con 3 plantas destinadas a aparcamiento.




