Se trata de un proyecto para la construcción de un edificio S.I.P.S privado de nueva planta para su uso como residencia de estudiantes y parking subterráneo; partiendo de las premisas históricas, locales y tratando de recuperar el conocimiento de la arquitectura tradicional de la zona y su incontestable adaptación al medio físico y al entorno urbano.
El solar que ocupa el proyecto se encuentra en el Conjunto Histórico de Sevilla, en el barrio del Arenal. Se trata de un tejido medieval intramuros, donde predominan las viviendas en medianeras de 2 a 4 plantas. Se trata de vacío que proviene de la demolición de un almacén que daba servicio a una antigua fundición de Hierro. El solar presenta doble fachada, la principal hacia la calle Rodo y otra que da a un pequeño adarve de la C/General Castaños. Las construcciones del entorno en general datan de finales del XIX y principios del XX. La zona se encuadra dentro del Plan Especial de Protección Conjunto Histórico Sector 13 – Arenal.
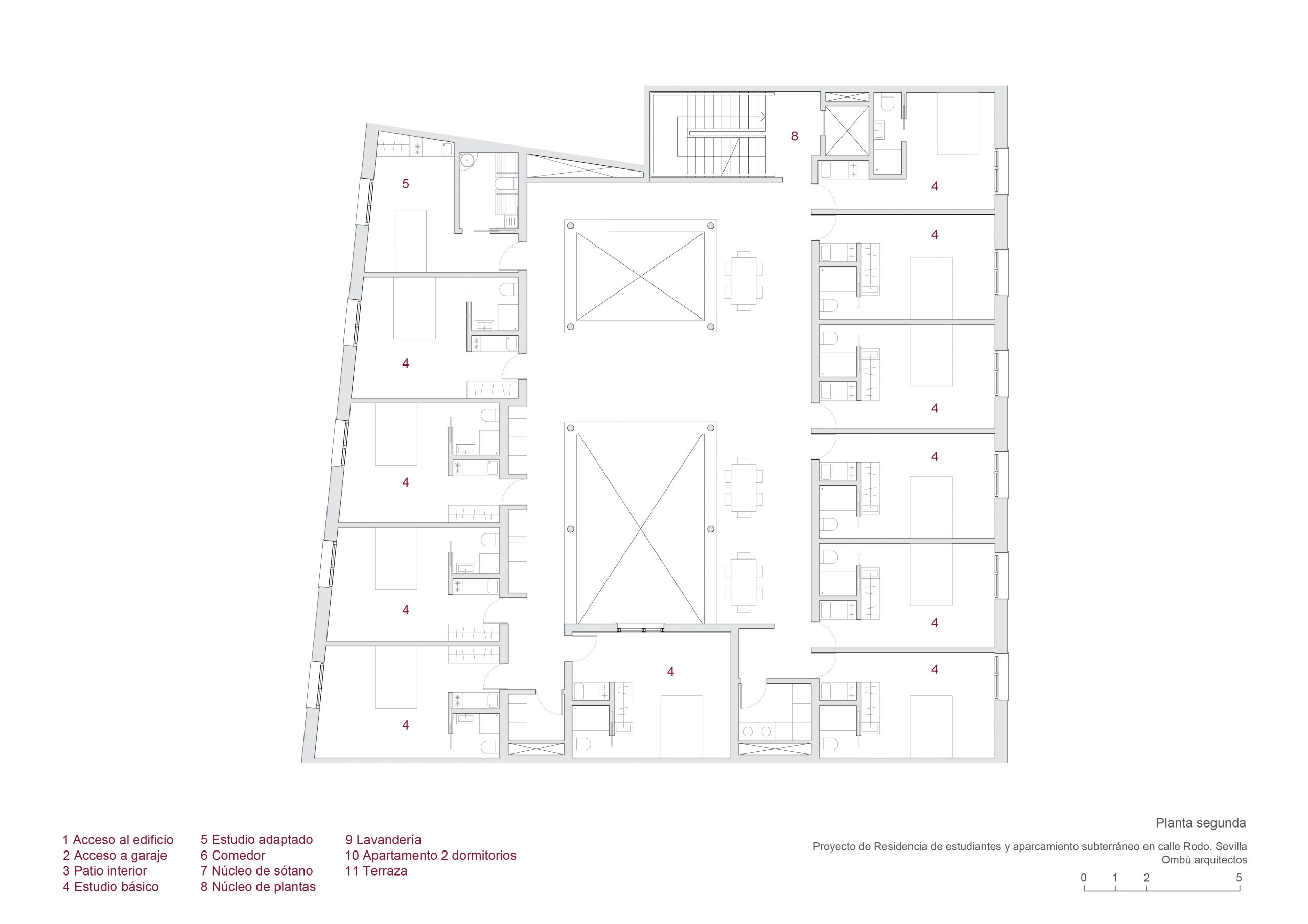
El proyecto se estructura mediante la construcción de dos volúmenes fundamentales alineados a cada una de las dos fachadas. Entre ambos volúmenes edificados un patio de galerías perimetrales que sirven de acceso a las habitaciones de los residentes es cruzado por puentes que al situarse en diferentes posiciones y alturas contribuyen a crear ámbitos diversos en su recorrido. Los puentes se presentan como espacios multiuso, que sirven indistintamente a una u otra ala del edificio.
El patio presenta una montera ventilada motorizada, con protecciones solares, que contribuye de forma decisiva al condicionamiento higrotérmico del edificio. En planta baja un local cafetería abierto a la fachada principal y al patio genera una trasparencia entre el exterior y el patio cubierto.




